Thursday, April 30th, 2026

New Build for Lease in Azure West Community!

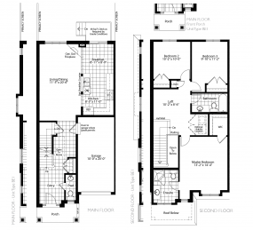
13 White Star Lane, Grimsby, ON

FABULOUS MARZ HOMES COMMUNITY WITH GREAT HWY ACCESS. 1,578 SQ. FT. UNIT HAS NEVER BEEN LIVED IN. BOASTING BEAUTIFUL OAK MAIN STAIRS AND CONVIENIENT SECOND FLOOR LAUNDRY. THIS HOME IS SURE TO IMPRESS, DON'T MISS YOUR OPPORTUNITY TO LEASE THIS FABULOUS HOME.

Your message was successfully sent!


Shawna Connelly

As a McMaster University graduate with an Honours degree in Commerce & a minor in Economics, Shawna brings over 10 years of expertise in real estate and possesses a strong foundation in market analysis. She brings extensive knowledge and skill to every transaction with superior quality service. Her value in building relationships has led to her quick success.< ...

Request Viewing View Shawna's Profile

$1,950.00


Downloads

No downloads available

Share



About Grimsby

Grimsby is a town on Lake Ontario in the Niagara Region, Ontario, Canada. Grimsby is a part of the Hamilton Census Metropolitan Area. It is named after the English fishing town of Grimsbyin north-east Lincolnshire. The majority of residents...

More About this Neighbourhood

Let our team of skilled professionals help you today.